Reindlerův dvůr – Jihlava

Rok
2017
Klient
Sur Lie
Stav
Urbanistická studie

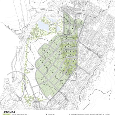
Urbanistická studie prověřující možnost revitalizace a využití lokality „Reindlerova dvora“ v Jihlavě, nacházející se severozápadně od městského centra Jihlavy, jako součást městské části Bedřichov.

Návrh definují hlavní komunikační osy v návaznosti na okolní strukturu zástavby, stejně tak jako princip uliční sítě tvořený obslužnými komunikace a obytnými zónami. Struktura respektuje morfologii řešeného území.

Návrh pracuje s druhovou rozmanitostí stávající zástavby a využívá pozvolnosti terénního reliéfu k výškové gradaci budoucí zástavby. Výběr funkční náplně v kombinaci se zónováním lokality a etapizací výstavby, vytváří variabilní možnosti pro zadavatele a investory.

Autorský tým: Pavel Bainar, Marek Focher